Dettagli Immobile

Prezzo € 512.149
Prezzo al M² €7,316/M²
Tipologia Appartamento
Stato Disponibile
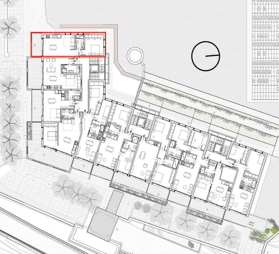
Superficie 70 M²
Camere 1
Bagni 1
Piano 2
Classe Energetica A++++
Condizioni Ottimo
Balconi/Terrazzi 1
Categoria Bilocale

Descrizione

Caratteristiche principali

Questo appartamento di 70 m², luminoso e accogliente, è la soluzione ideale per single o coppia. Dispone di 1 camera da letto e 1 bagno moderno e funzionale, pensato per garantire comfort e praticità nella vita quotidiana.

Situato al secondo piano, l’immobile si trova in ottime condizioni ed è pronto per essere abitato. La classe energetica A++++ assicura massimo comfort ed efficienza. L’appartamento dispone inoltre di un balcone/terrazzo, perfetto per momenti di relax all’aperto. Le spese condominiali previste per il 2023-2024 ammontano a € 1.622,00.

Come evidenziato nella planimetria, è possibile creare una seconda zona notte, separata e funzionale, aumentando la flessibilità dell’abitazione.

Opzioni aggiuntive

È possibile acquistare posti auto al prezzo di € 35.000,00, con la possibilità di applicare il recupero fiscale sui costi di costruzione. Sono inoltre disponibili cantine, con prezzi che variano da € 12.000,00 a € 25.000,00.